产品概述
ZW7-35KV型系列户外高压真空断路器系三相交流50Hz,额定电压为40.5KV的户外高压电器设备,附装弹簧操动机构或电磁操动机构,可以远控电动分、合闸,也可手动储能,手动分、合闸。设计性能符合GB1984-89《交流高压断路器》国家标准的要求,并满足IEC-56《交流高压断路器》国际电工委员会标准的要求。ZW7-35KV型真空断路器,主要用于户外35KV输变电系统的控制与保护,也适用于城、乡配电网络及工矿企业的正常操作与短路保护之用。该产品总体结构为瓷瓶支柱式;上瓷瓶内装真空灭弧式,下瓷瓶为支柱瓷瓶。适用于频繁操作的场所。并具有密封性好、抗老化、耐高压、不燃烧、无爆炸,使用寿命长,安装维护方便等特点。
本产品可根据客户要求内置或外置35KV电流互感器,以实现测量、计量、保护等用处。
适用场所
1、海拔:≤2500m;
2、周围空气温度:最高+40℃,最低-35℃;
3、风压不超过700Pa(相当于风速34m/s);
4、地震烈度不超过8度;
5、空气污染程度:Ⅲ级;
6、最大日温差:不超过25℃
卖点展示
1、瓷柱式结构,防水型传动箱,新型的真空灭弧室;
2、2-3只电流互感器,每相四个线圈,根据用户需要选择变化;
3、可配CD10电磁机构或CT19弹簧机构;
4、开断性能好,可靠性高寿命长,维护工作量小;
5、无油化、无气化、经济环保;
6、外绝缘修正后现运行海拔2700mm。
技术参数

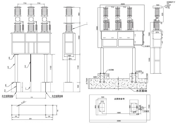
外形尺寸
